Data wysylki: 2025-10-30
ICH WERDE DIE ELEMENTE PER LASERSCHNEIDEN ZUSCHNEIDEN LASSEN.
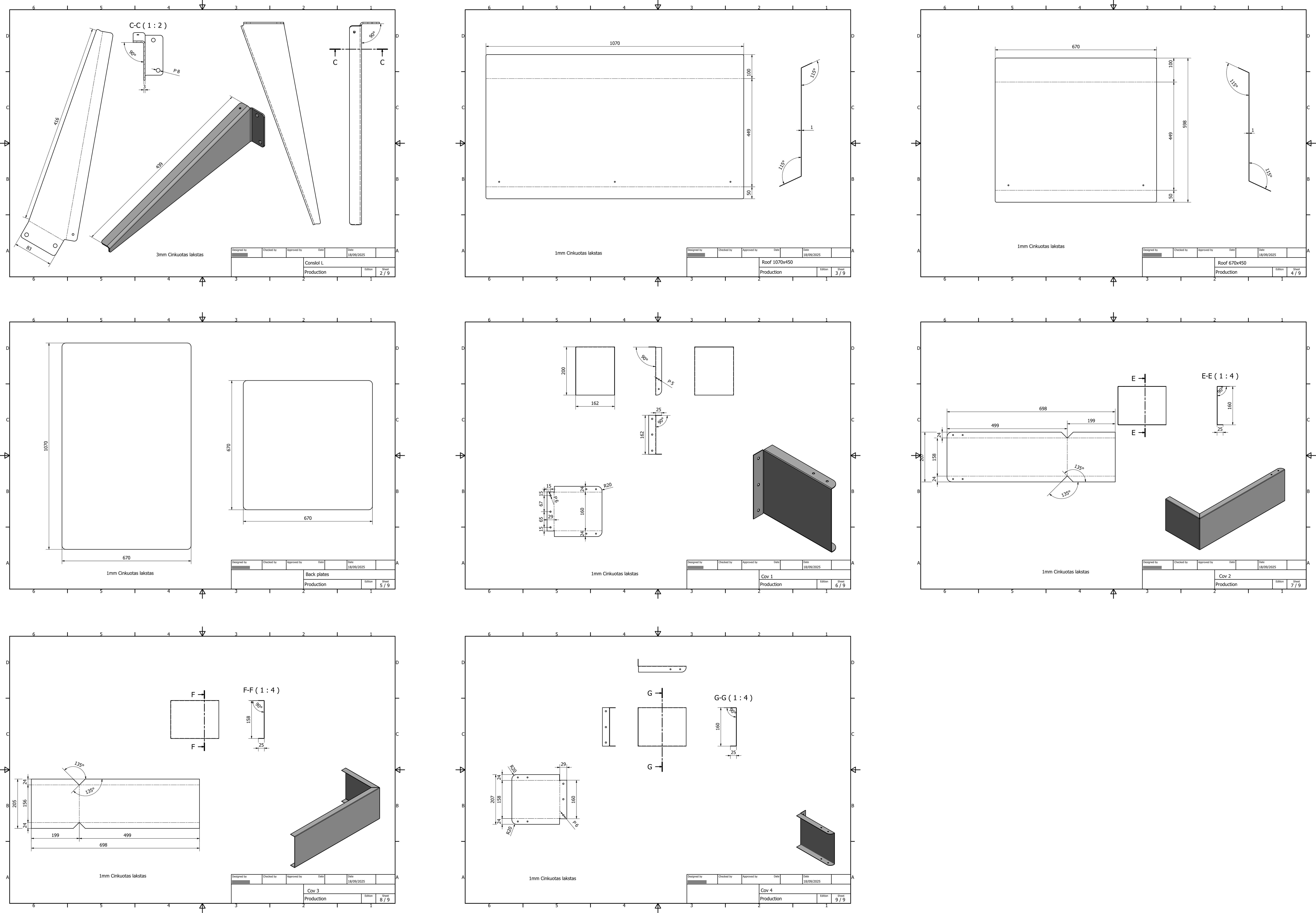
Ich möchte einige Elemente laserschneiden lassen. Wir möchten unsere Produkte aus 1 mm dickem, verzinktem Blech fertigen lassen und den Auftrag noch in diesem Jahr abschließen. Da es sich nicht um einen einmaligen Auftrag handelt, suchen wir nach dem besten Preis. Wir werden regelmäßig Nachbestellungen aufgeben und die Stückzahlen schrittweise erhöhen. Möglicherweise sind während der Produktionsplanung kleinere Maßanpassungen erforderlich, um die Blechoberfläche optimal auszunutzen. Wir planen eine Erstbestellung von 100 Sets. Technische Zeichnungen und STEP-Dateien erhalten Sie von Ihrem Cyberbiznes-Berater. Beispielzeichnungen: Link zur Datei Die Abdeckungselemente Cov 1..4 sind in ihren Abmessungen anpassbar: 100× Cov 1, 100× Cov 2, 100× Cov 3, 100× Cov 4, Dach 670×450. Consol L ist ein Vordachset: 100× Dach 670×450, 200× Consol L, 100× Rückwand 670×670. Ich bitte außerdem um ein Angebot für: Rückwand 1070×670, Dach 1070×450. Zur Klarstellung: Wir möchten das Projekt noch in diesem Jahr umsetzen und liefern.
The term search: tydzień
Korrespondenz in: litewski, angielski
Ähnliche Angebote
Versanddatum: 2025-10-31
ICH WERDE EINE LASERGRAVUR IN ALUMINIUM IN AUFTRAG GEBEN.
Versanddatum: 2025-10-30
ICH WERDE DIE ELEMENTE PER LASERSCHNEIDEN ZUSCHNEIDEN LASSEN.
Versanddatum: 2025-09-03
ICH WERDE LASERSCHNEIDEN IN AUFTRAG GEBEN
Versanddatum: 2025-08-06
ICH WERDE DIE HERSTELLUNG VON TEILEN AUS AUTOMATENSTAHL IN AUFTRAG GEBEN
Versanddatum: 2025-08-06
ICH WERDE DAS SCHNEIDEN UND BIEGEN IN AUFTRAG GEBEN.
Versanddatum: 2025-06-23
ANGEBOTSANFRAGE – DREHEN 2 TEILE
Versanddatum: 2025-06-09
WIR BEAUFTRAGEN DIE OBERFLÄCHENBEHANDLUNG VON METALLELEMENTEN IM GALVANISCHEN VERFAHREN
Versanddatum: 2025-06-06
ICH WERDE BLECHZUSCHNITTE IN AUFTRAG GEBEN
Versanddatum: 2025-06-03
ICH WERDE DAS SCHLEIFEN VON BRAMMEN IN AUFTRAG GEBEN
Versanddatum: 2025-05-20
ICH WERDE DIE HERSTELLUNG VON GEBRANNTEN TEILEN IN AUFTRAG GEBEN
Versanddatum: 2025-05-06
ICH BEAUFTRAGE CNC-FRÄSEN UND DREHEN
Versanddatum: 2025-03-14
WIR BEAUFTRAGEN DIE BEARBEITUNG VON PUMPENKOMPONENTEN
Versanddatum: 2025-02-18
ICH BEAUFTRAGE DIE HERSTELLUNG VON SCHNITT- UND BIEGETEILEN
Versanddatum: 2025-02-05





